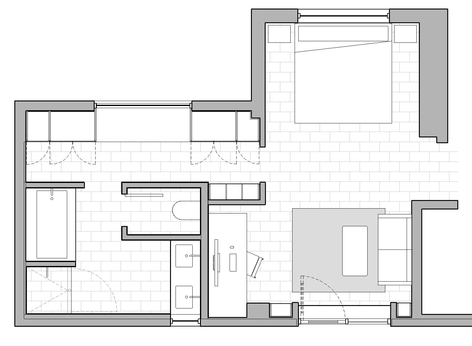
Verde Street Residence
Completed: 2022 Phoenix, AZ
600 SQFT Primary Suite Renovation
Designed & Built by: John Lee
Photos: John Lee
Completed: 2022 Phoenix, AZ
600 SQFT Primary Suite Renovation
Designed & Built by: John Lee
Photos: John Lee